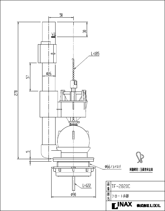
■ INAX製洋風便器ロータンク内のパーツで排水弁部になります。

フロート弁やオーバーフロー管、締付けナット等が一式セットです。

■ オーバーフロー管のヒビ割れや破損等でタンク内部水が漏水する場合に、タンクを取外してフロート弁部を丸ごと新しく取り換えます。

■ 適合タンク アメージュC便器でタンク品番がGDT-2820、DT-2820、GDT-2520、DT-2520に適合 同じシリーズ便器でもタンク品番で適合するフロート弁が変わります。

必ずタンク品番をご確認ください。

タンク品番の調べ方は>>コチラ ■ 必要工具 プラス・マイナスドライバー、モンキーレンチ、13ミリのスパナかレンチ、ウォーターポンププライヤー等の口開きの大きいレンチ類、密結ボルト、手袋、雑巾等が必要 ■ 取付方法 まず止水栓をマイナスドライバーで水を止め、タンク内の水を排水します。

ふたを外して給水管の接続ナットを外し取付けボルトのナットを外しタンクを外します。

排水弁部の締付けナットを口開きの大きいレンチ類で外して、新しい部材と取替えます。

その際取付けボルトの緩みがあれば、内部からプラスドライバーで押さえながら13ミリレンチで増し締めします。

タンク取付けでは便器側の水受け部材を確実に弁部排水口内に入る事を確認しながら乗せます。

確実に入らないと洗浄時に漏水しますのでご注意ください。

ナットの締付けでは締めすぎると陶器や弁部が割れますので、締め過ぎないようガタのないよう適度な締付けをしてください。

水張り後は各箇所の漏水の有無を必ず確認してください。

■ 弁部一式、説明書はなし  

レビュー件数10
レビュー平均4.9
ショップ 水道屋さん
税込価格 4,180円